Meld je aan voor de nieuwsbrief

Deurneseweg 45 Heide

Specificaties

Vraagprijs: € 829.000 k.k.

  • Postcode: 5812 PA
  • Woonoppervlakte: 239 m2
  • Perceeloppervlakte: 2499 m2
  • Inhoud: 2099 m3
  • Bouwjaar: 1978
  • Kamers: 5
  • Slaapkamers: 4
  • Ligging: Vrij uitzicht, Buiten bebouwde kom, Landelijk gelegen
  • Bouwvorm: Bestaande bouw
  • Soort woning: Eengezinswoning
  • Type woning: Vrijstaande woning
  • Energieklasse: D
  • CV ketel: Nefit turbo 32 1994 GAS

Terug naar volledige overzicht

Omschrijving

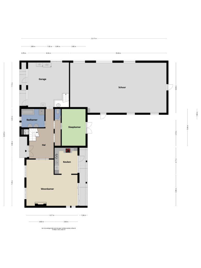
Op een mooie locatie in het buitengebied van Heide (gemeente Venray) staat deze royale L-vormige woning op een riant perceel van 2.499 m². Je woont hier omgeven door groen, met een prachtig vrij uitzicht over de omliggende landerijen.

De woning biedt veel woon- en bergruimte. Op de begane grond bevinden zich een ruime woonkamer, keuken, hal, slaapkamer, badkamer en een royale inpandige dubbele garage. Op de eerste verdieping vind je drie grote slaapkamers, een praktische berging met toegang tot de bergzolder en een tweede badkamer. Een groot deel van de woning is onderkelderd, wat zorgt voor extra gebruiks- en opslagruimte.

Aan de woning grenst een stalvleugel die niet alleen interessant is voor paarden- of dierenliefhebbers, maar ook voor wie op zoek is naar kantoor- of praktijkruimte aan huis of de wens heeft om een mantelzorgwoning te realiseren.

De woning is gebouwd in 1978 en verkeert nog in de oorspronkelijke staat. Dit maakt het object geschikt voor kopers die willen moderniseren en verduurzamen en zo een eigentijdse, energiezuinige woning op een unieke plek willen creëren.

Bijzonderheden:
– Landelijk en vrij gelegen op royaal perceel van 2.499 m²
– Fraai vrij uitzicht over de achterliggende landerijen
– Riante leefruimte met veel bergruimte
– Slaap- en badkamer op de begane grond
– Met vier slaapkamers!
– Stalvleugel, uitermate geschikt voor paardenliefhebbers of te gebruiken als mantelzorg- of praktijkruimte

Omschrijving woning:
De keuken met kunststof blad en Oudhollandse tegeltjes is uitgerust met een elektrische kookplaat en afzuigkap. De inrichting is nog geheel origineel en deels gedateerd, maar biedt volop kansen om hier een moderne droomkeuken naar eigen smaak te creëren. Via de achterdeur in de keuken is er direct toegang tot de tuin en het terras.

De woonkamer heeft een klassieke, landelijke uitstraling met sfeervolle open haard, balkenplafond en terracotta vloer. Grote raampartijen met roedeverdeling bieden veel natuurlijke lichtinval en een mooi uitzicht op de tuin en de landerijen.

Op de begane grond bevinden zich een ruime slaapkamer en badkamer; ideaal voor wie gelijkvloers wil wonen. De slaapkamer heeft openslaande deuren naar het terras en is licht en ruim. De betegelde badkamer is nog in originele staat en uitgerust met twee wastafels, een ligbad en een douche.

De overloop op de verdieping geeft toegang tot drie ruime slaapkamers, een berging en een tweede badkamer.

De volledig betegelde badkamer is uitgerust met een douche, toilet en wastafel. In de berging bevindt zich een luik met toegang tot de bergzolder. De slaapkamer aan het einde van de gang is ruim van formaat en heeft een deur naar het balkon aan de achterzijde, waar je volop kunt genieten van het vrije uitzicht over de landerijen.

De woning beschikt over een grote inpandige garage met twee garagedeuren, waarvan één met praktische loopdeur. Hier is de elektrische huurboiler geplaatst en heb je toegang tot de ruime kelder met meerdere vertrekken en toegang tot de kruipruimte.

De stalvleugel is voorzien van water en elektra en biedt talloze mogelijkheden: bijvoorbeeld als paardenstal met directe toegang tot het land, of na verbouwing, als comfortabele mantelzorgwoning of representatieve praktijkruimte aan huis. Op de vliering bevindt zich een berging met de c.v.-installatie.

Kenmerken:
– dak met shingles
– stalen spanten en houten gordingen
– plafond afgetimmerd met houten platen
– betonnen vloer met mestputten
– toegang via een houten kanteldeur en twee loopdeuren.

Door de L-vorm van de woning ontstaat een beschutte, privacyrijke buitenruimte met een mooi terras op het zuiden. Vanuit het terras geniet je van een ruim uitzicht op het mooie landelijke gebied.

Omgeving:
De omgeving van Venray en Heide, met haar landelijke charme, is een heerlijke plek om te wonen. Je geniet er van een groene, landelijke leefomgeving, terwijl alle voorzieningen dichtbij zijn. Het levendige centrum van Venray, met een breed aanbod aan winkels en voorzieningen, ligt op circa 12 minuten fietsen.

De locatie is goed ontsloten via de N270. Binnen 10 minuten rijd je naar de A73 richting Nijmegen en Venlo. Venray beschikt daarnaast over een treinstation met verbindingen naar Nijmegen, Venlo en Roermond. Op ongeveer 15 kilometer ligt het station van Deurne, met directe
treinverbindingen naar Helmond en Eindhoven.

Gratis zoekservice

Laat ons weten wat je zoekt.
Wij sturen je vervolgens gratis het meest actuele aanbod door.

Zo ben je altijd als eerste op de hoogte!

Je gebruikt een verouderde webbrowser

Deze website maakt gebruik van moderne technieken die niet worden ondersteund door jouw webbrowser. Update mijn webbrowser

×

Sluiten
Sluiten